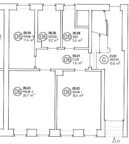
Wohnung EG - Bernhard - Göring - Str. 21
zur Wohnung gehören alle Räume mit der Nr. 6

Wohnen in unmittelbarer Nähe zum Leipziger Ring und zum Bayrischen Bahnhof mit einem Hof, welcher das Parken von PKW erlaubt, mit einer jungen und aufgeschlossenen Mietergemeinschaft.
Wohnung 06: 3 Zimmer, sowie Küche und Bad mit Flur; Laminat
mit Badewanne, WC, Waschtisch
ca. 71 qm; Grundmiete 319,50 + 160,00 € Grundmiete = 479,50 € Gesamtmiete
2 Kaltmieten Kaution